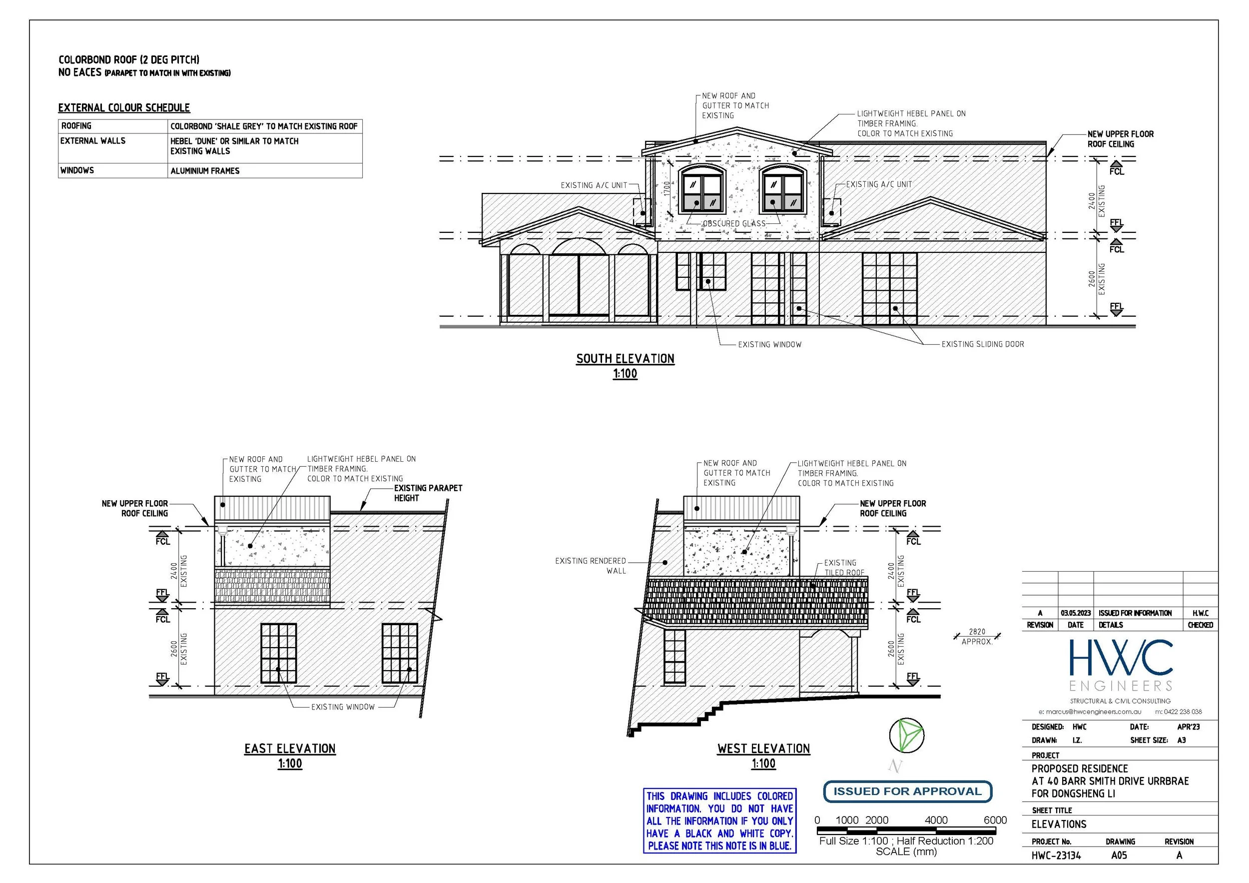
This project was personally completed by me using CAD software and falls under the category of building renovation. I spent a total of 8 hours completing all the drawings, which passed scrutiny from the reviewing authority and the South Australian government department. This demonstrates my professionalism and quick, efficient work style. The speedy completion of the drawings showcases my expertise in CAD design. The project was located at 40 Barr Smith Drive, and the client was extremely satisfied with the final outcome.

Previous
Previous

Multipurpose Hall

Next
Next

Multi-Residetial